Alassio – terreno fronte mare

  • €950.000
Via Adelasia, Alassio, Savona, Liguria, 17021, Italia
Vendita
Via Adelasia, Alassio, Savona, Liguria, 17021, Italia
  • €950.000

Panoramica

ID Proprietà: 10591TE57129
  • Luxury, Terreno, terreno edificabile
  • Tipo di Immobile

Descrizione

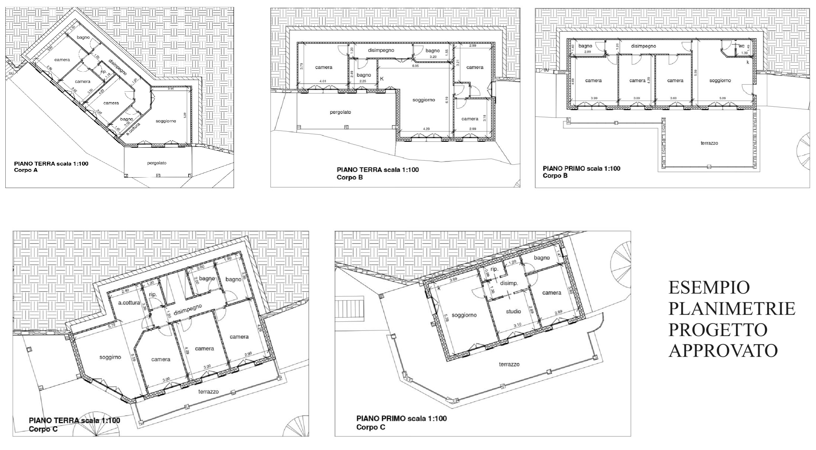
Alassio – In prima collina, terreno, esposto a sud in pieno sole con ampia vista mare, a circa un km e mezzo dalla spiaggia, vendiamo terreno edificabile con progetto approvato in comune e pronto a partire. La proprietà è composta da 2.700 mq di terreno in Alassio, Località Marella. Il progetto prevede la costruzione e l’ampliamento di volumetria (già in essere) per circa 500 mq lordi di spazio abitativo oltre ad accessori interrati, patii, box ecc.; il progetto è stato depositato in Comune ed approvato.
Così come licenziato prevede la costruzione di due ville bifamiliari ed una villa singola, box, posti auto e verde privato con accessi indipendenti.
Oggetto della proposta immobiliare è la realizzazione di immobili che si inseriscono come visibile dalle immagini precedenti nel contesto del litorale, si presentano come inseriti nella collina; gli immobili saranno adeguati alle recenti normative sismiche, si presenteranno a consumo quasi nullo di energia, rientrando nelle categorie di case «GREEN», il che le rende facilmente appetibili sul mercato odierno, in quanto presentano costi di gestione praticamente nulli. Le casa saranno dotate di ogni confort abitativo e gestibili secondo i più recenti standard di « building automation». Maggiori informazioni in ufficio.

Documenti Immobile

Planimetria progetto terreno alassio
Estratto di mappa terreno alassio
  • Indirizzo Via Adelasia
  • Città Alassio
  • Stato Italia
  • CAP 17021
  • Regione Liguria

Dettagli

Aggiornato su Settembre 11, 2024 a 4:47 pm
  • ID Proprietà: 10591TE57129
  • Prezzo: €950.000
  • Dimensioni Immobile: 2700 mq commerciali
  • Tipo di Immobile: Luxury, Terreno, terreno edificabile
  • Contratto Immobile: Vendita

Informazioni di contatto

Visualizza Inserzioni

Richiedi informazioni su questo immobile

Confronta gli annunci

Confrontare
Alessandra Mazza
  • Alessandra Mazza