Biella – Villa a schiera con giardino

  • €290.000
6, Via Domenico Vallino, Cascina Gesuiti, Vandorno, Biella, Piemonte, 13900, Italia
Vendita
6, Via Domenico Vallino, Cascina Gesuiti, Vandorno, Biella, Piemonte, 13900, Italia
  • €290.000

Panoramica

ID Proprietà: 10591RV52108
  • Casa, Casa centro schiera, Villa
  • Tipo di Immobile
  • 6
  • Vani
  • 3
  • Bagni
  • 3
  • Camere da letto
  • doppio
  • Garage

Descrizione

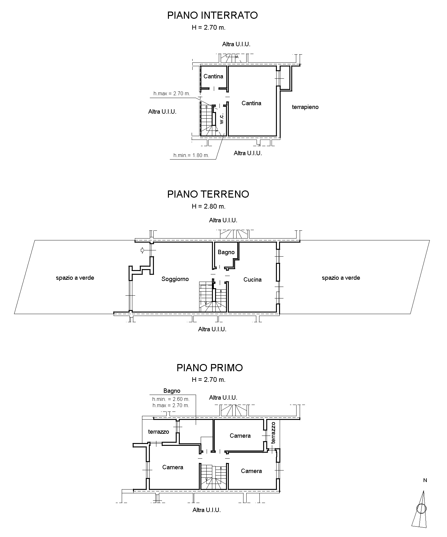
Biella – in zona bottalino in contesto signorile, vendiamo villa a schiera con giardino completamente ristrutturata. L’ immobile si sviluppa su tre livelli cosi divisi. Al piano terra troviamo l’ingresso sul soggiorno che comunica con la cucina abitabile servita dal giardino privato ed il primo bagno. Al piano primo troviamo 2 camere da letto con cabina armadio ed il bagno principale .Al piano mansardato é presente una grande camera/ studio servita da un bagno finemente arredato esclusivo. Il seminterrato e composto da: tavernetta, cantina e box auto doppio direttamente collegato al resto della casa. Le finiture di pregio e la dotazioni tecniche presenti ne fanno un immobile di sicuro interesse. Maggiori informazioni in ufficio.

Documenti Immobile

  • Indirizzo Via Vallino 6
  • Città Biella
  • Stato Italia
  • CAP 13900
  • Area Bottalino
  • Regione Piemonte

Dettagli

Aggiornato su Novembre 3, 2025 a 3:13 pm
  • ID Proprietà: 10591RV52108
  • Prezzo: €290.000
  • Dimensioni Immobile: 150 mq commerciali
  • Camere da letto: 3
  • Vani: 6
  • Bagni: 3
  • Garage: doppio
  • Dimensione Garage: 35 mq
  • Anno di Costruzione: 2025
  • Tipo di Immobile: Casa, Casa centro schiera, Villa
  • Contratto Immobile: Vendita
  • Riscaldamento: Autonomo
  • Condizioni: Ristrutturato
  • Terreno o Giardino: 70 mq commerciali
  • Spese Condominiali: 20 €/mese

Classe Energetica

  • Classe Energetica: F
  • Indice di prestazione energetica globale: 290
  • A+
  • A
  • B
  • C
  • D
  • E
  • 290 | Classe Energetica F
    F
  • G
  • H

Video

Informazioni di contatto

Visualizza Inserzioni

Richiedi informazioni su questo immobile

Confronta gli annunci

Confrontare
Andrea Rossi
  • Andrea Rossi