Camburzano – casa singola

  • €69.000
6, Via G.B. Maffiotti, Rivera, Camburzano, Biella, Piemonte, 13891, Italia
Vendita
6, Via G.B. Maffiotti, Rivera, Camburzano, Biella, Piemonte, 13891, Italia
  • €69.000

Panoramica

ID Proprietà: 10591RV13868
  • Casa
  • Tipo di Immobile
  • 6
  • Vani
  • 1
  • Bagno
  • 4
  • Camere da letto
  • no
  • Garage

Descrizione

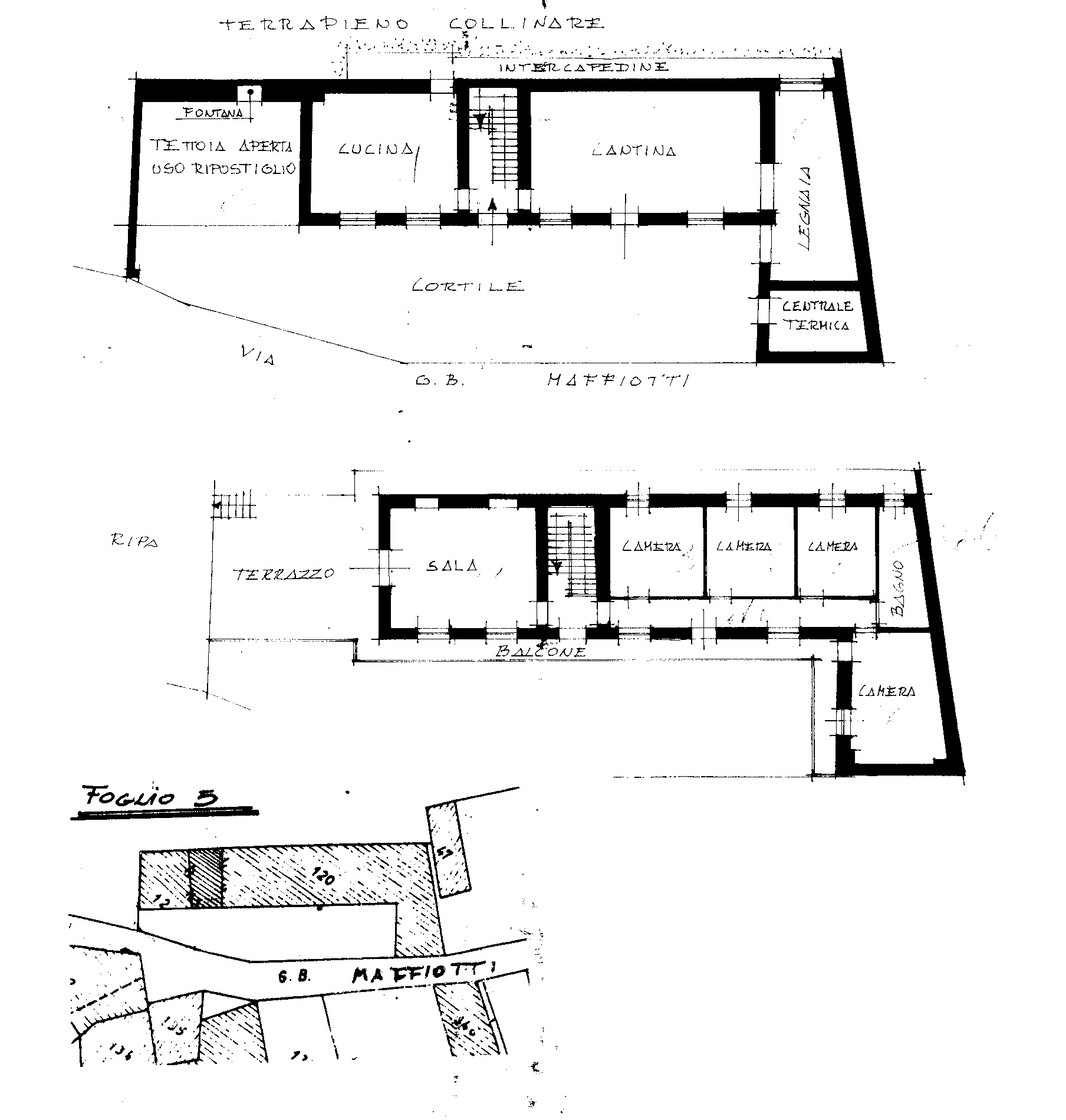
Camburzano – nel centro del paese vendiamo casa singola di ampia metratura. Al piano terra c’è una grande cucina, la cantina, laboratorio e centrale termica. Al primo piano il soggiorno con angolo cottura, il grande terrazzo coperto, 4 camere da letto e il bagno. Completa la proprietà il cortile esclusivo, il parcheggio coperto, il giardino di circa 200 mq. Maggiori informazioni in ufficio.

Documenti Immobile

plan camburzano
  • Indirizzo Via Maffiotti 6
  • Città Camburzano
  • Stato Italia
  • CAP 13891
  • Regione Piemonte

Dettagli

Aggiornato su Gennaio 14, 2026 a 6:50 pm
  • ID Proprietà: 10591RV13868
  • Prezzo: €69.000
  • Dimensioni Immobile: 400 m2
  • Camere da letto: 4
  • Vani: 6
  • Bagno: 1
  • Garage: no
  • Anno di Costruzione: 1970
  • Tipo di Immobile: Casa
  • Contratto Immobile: Vendita
  • Riscaldamento: Autonomo
  • Condizioni: Abitabile
  • Terreno o Giardino: 200 mq commerciali
  • Spese Condominiali: zero

Classe Energetica

  • Classe Energetica: G
  • Indice di prestazione energetica globale: 350
  • A+
  • A
  • B
  • C
  • D
  • E
  • F
  • 350 | Classe Energetica G
    G
  • H

Video

Informazioni di contatto

Visualizza Inserzioni

Richiedi informazioni su questo immobile

Confronta gli annunci

Confrontare
Andrea Rossi
  • Andrea Rossi