Cossato – Casa semindipendente

  • €290.000
4, Piazza Antonio Gramsci, Centro, Polle, Cossato, Biella, Piemonte, 13836, Italia
Vendita
4, Piazza Antonio Gramsci, Centro, Polle, Cossato, Biella, Piemonte, 13836, Italia
  • €290.000

Panoramica

ID Proprietà: 10591RV54612
  • Casa
  • Tipo di Immobile
  • 12
  • Vani
  • 3
  • Bagni
  • 4
  • Camere da letto
  • no
  • Garage

Descrizione

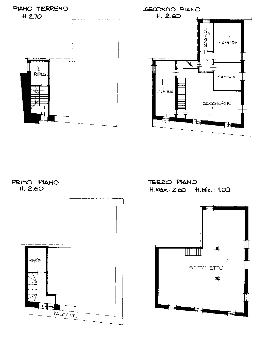
Cossato – In pieno centro storico cittadino proponiamo in vendita ampia casa semindipendente composta da due unità immobiliari con accesso indipendente:
– PT – 1P Locale commerciale disposto su due livelli, completamente ristrutturato di circa 260 mq e attualmente locato.
– 2P e Piano mansardato Ampio e signorile appartamento composto da ingresso living su salone doppio, cucina abitabile, disimpegno, due camere da letto matrimoniali, bagno, locale lavanderia e balcone.
Completa la proprietà locale uso ripostiglio al Piano terreno.
La casa è stata completamente ristrutturata di recente, il riscaldamento è autonomo e ogni unità ha la sua caldaia a condensazione indipendente, gli infissi sono in legno con la vetrocamera e il tetto e la facciata sono stati rifatti recentemente. Ottima anche ad uso investimento ! Maggiori informazioni in ufficio.

Documenti Immobile

Plan Cossato Piazza Gramsci
  • Indirizzo Piazza Gramsci 4
  • Città Cossato
  • Stato Italia
  • CAP 13836
  • Regione Piemonte

Dettagli

Aggiornato su Marzo 18, 2025 a 5:28 pm
  • ID Proprietà: 10591RV54612
  • Prezzo: €290.000
  • Dimensioni Immobile: 490 mq commerciali
  • Camere da letto: 4
  • Vani: 12
  • Bagni: 3
  • Garage: no
  • Anno di Costruzione: 2000
  • Tipo di Immobile: Casa
  • Contratto Immobile: Vendita
  • Riscaldamento: Autonomo
  • Condizioni: Ristrutturato
  • Terreno o Giardino: no
  • Spese Condominiali: zero

Classe Energetica

  • Classe Energetica: G
  • Indice di prestazione energetica globale: 304
  • A+
  • A
  • B
  • C
  • D
  • E
  • F
  • 304 | Classe Energetica G
    G
  • H

Informazioni di contatto

Visualizza Inserzioni

Richiedi informazioni su questo immobile

Confronta gli annunci

Confrontare
Alessandra Mazza
  • Alessandra Mazza