Mongrando – negozio con vetrina

  • €35.000
25, Via Roma, Tana, Mongrando, Biella, Piemonte, 13888, Italia
Vendita
25, Via Roma, Tana, Mongrando, Biella, Piemonte, 13888, Italia
  • €35.000

Panoramica

ID Proprietà: 10591CA80099
  • Commerciale / attività, Negozi
  • Tipo di Immobile
  • 2
  • Vani
  • 1
  • Bagno
  • no
  • Garage

Descrizione

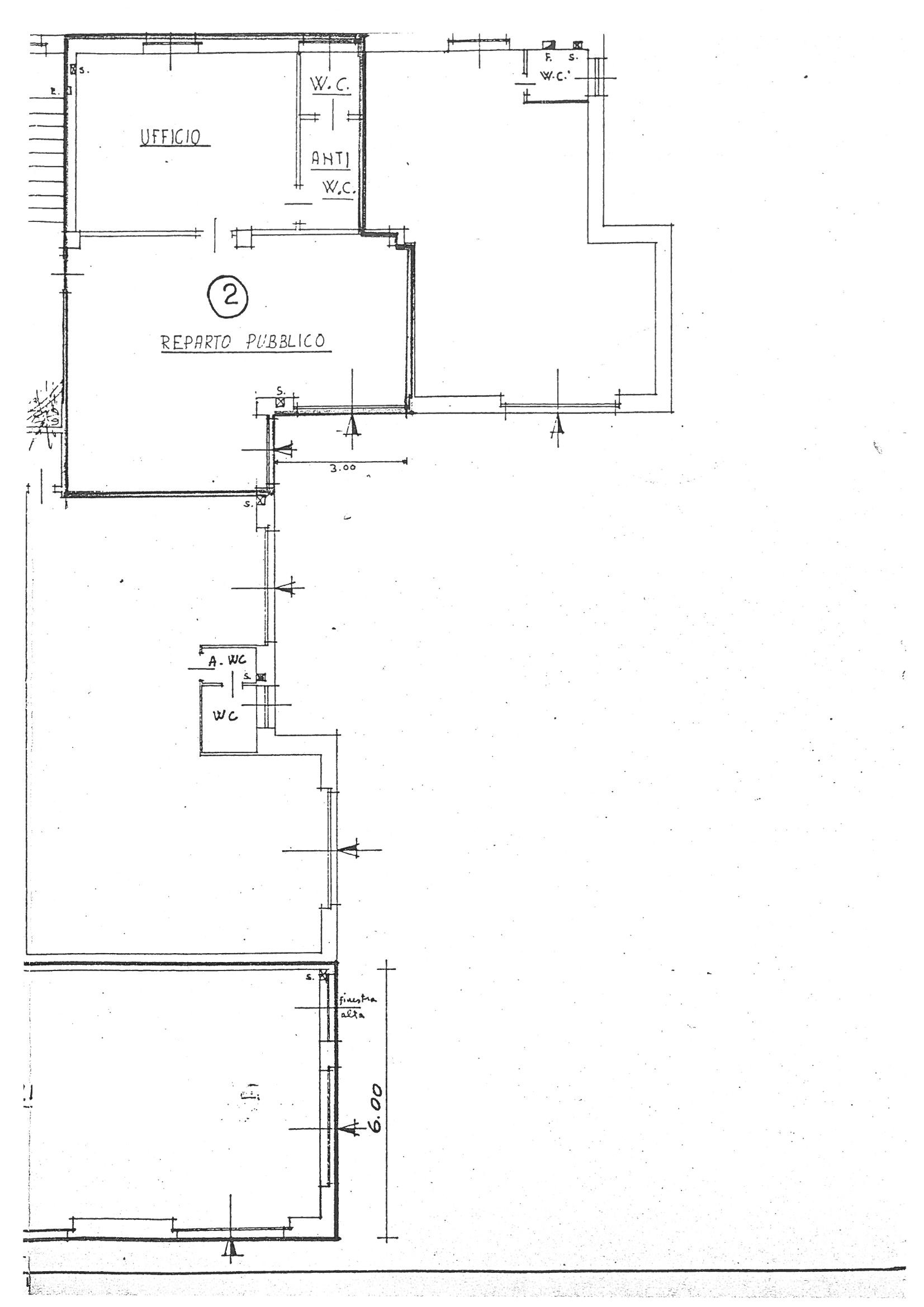
Mongrando – nel centro del paese vendiamo negozio con vetrina e ampio parcheggio. L’entrata è indipendente, il negozio dispone di due ampi locali oltre l’antibagno e il bagno. Il riscaldamento è centralizzato semiautonomo con basse spese di gestione. Maggiori informazioni in ufficio

Documenti Immobile

plan negozio mongrando
  • Indirizzo Via Roma 25
  • Città Mongrando
  • Stato Italia
  • CAP 13888
  • Regione Piemonte

Dettagli

Aggiornato su Dicembre 6, 2024 a 7:19 pm
  • ID Proprietà: 10591CA80099
  • Prezzo: €35.000
  • Dimensioni Immobile: 80
  • Vani: 2
  • Bagno: 1
  • Garage: no
  • Anno di Costruzione: 2000
  • Tipo di Immobile: Commerciale / attività, Negozi
  • Contratto Immobile: Vendita
  • Riscaldamento: Semiautonomo
  • Condizioni: Buone condizioni
  • Terreno o Giardino: no
  • Spese Condominiali: 50 €/mese

Classe Energetica

  • Classe Energetica: F
  • Indice di prestazione energetica globale: 304
  • A+
  • A
  • B
  • C
  • D
  • E
  • 304 | Classe Energetica F
    F
  • G
  • H

Video

Informazioni di contatto

Visualizza Inserzioni

Richiedi informazioni su questo immobile

Confronta gli annunci

Confrontare
Andrea Rossi
  • Andrea Rossi